散粒狀固體物料由加料器加入流化床干燥器中。過濾后的潔凈空氣加熱后由鼓風機送入流化床底部經分布板與固體物料接觸,形成流態化達到氣固相的熱質交換。物料干燥后由排料口排出,廢氣由沸騰床部排出經旋風除塵器和布袋除塵器回收細小粉料后排空。
簡介:
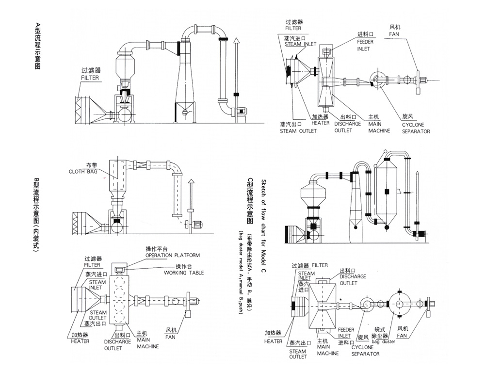
沸騰干燥器,又稱流化床,它是由空氣過濾器、加熱器、沸騰床主機、加料器、旋風分離器、布袋除塵器、高壓離心風機、操作臺等組成。由于干燥物料的性質不同,配套除塵設備時,可按需要考慮,可同時選擇旋風分離器、布袋除塵器,也可選擇其中一種,一般來說比重較大的如沖劑及顆粒物料干燥只需選擇旋風分離器,比重較輕的小顆粒狀和粉狀物料需配套布袋除塵器,并備有氣力送料裝置供選擇。
應用范圍:
它適用于散粒狀物料的干燥。如:醫藥藥品中的原料藥、壓片顆粒、中藥沖劑、化工原料中的塑料樹脂、檸檬酸和其它粉狀、顆粒狀物料的干燥除濕,食品、食品加工、食品飲品沖劑、玉米胚芽、飼料等的干燥。物料的粒徑一般為0.1~6mm,最佳粒徑為0.5~3mm。
熱源:
蒸汽、電、熱風爐均可配用。(按客戶要求配套)

技術參數

注:干燥能力與物料特性和進出口溫度有關







